Arquitectura y Urbanismo
Ubeda Rives Arquitectos

 

 

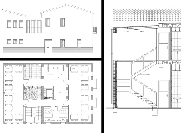
Rehabilitación Centro Social

 

Municipio: Burjassot

Promotor: Ayuntamiento de Burjassot.

Superficie: 354 m2

Año: 2.004