Arquitectura y Urbanismo
Ubeda Rives Arquitectos

 

 

 

 

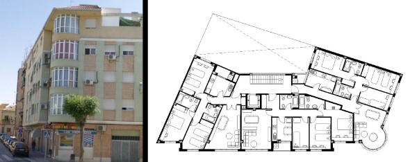
12 viviendas, locales y garaje.

 

Municipio: Burjassot

Promotor:  Privado

Superficie: 1.791 m2 

Año: 1.996