Arquitectura y Urbanismo
Ubeda Rives Arquitectos

 

 

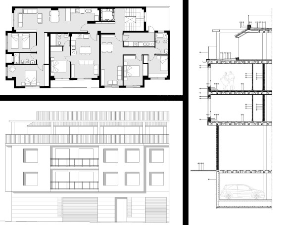
6 viviendas, 2 locales y garajes.

 

Municipio: Burjassot

Promotor:  Privado

Superficie: 857 m2 

Año: 2.008